Armement du fort de Fléron[f6][50.617411, 5.692187] 🌎

L'artillerie à action lointaine comprend : 1 coupole pour 2 canons de 15 cm, 2 coupoles pour 2 canons de 12 cm, 2 coupoles pour 1 obusier de 21 cm. L'artillerie à action rapprochée comprend : 4 coupoles pour 1 canon de 5,7 cm à tir rapide.

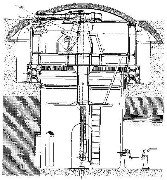
Coupoles de 12 et 15 cm

Les coupoles de 12 et de 15 cm ne sont pas éclipsables. La cuirasse repose par l'intermédiaire d'un joint en plomb sur une sablière en tôles et cornières. Cette sablière supportée par une série de montants verticaux dont la partie inférieure s'appuie sur une circulaire mobile. Celle-ci repose sur une couronne de galets tronconiques qui prend elle-même appui sur une circulaire fixe. La rotation rapide est assurée par un treuil à manivelle placé à l'étage inférieur. Le mouvement lent se fait par une roue placée dans la chambre de tir et qui actionne un pignon réducteur. La cuirasse, en forme de calotte sphérique, est en acier laminé. L'avant-cuirasse, en fonte durcie, est profilée extérieurement en arc de cercle. Elle est noyée dans un anneau protecteur en béton simple qui se confond avec le massif central. La portée des canons de 15 cm était de 8500 mètres, celle des canons de 12 cm était de 6000 mètres.

Coupoles de 21 cm

Comme les précédentes, les coupoles de 21 cm ne sont pas éclipsables mais ici, la cuirasse repose directement sur l'avant-cuirasse. En conséquence, pour pouvoir effectuer une rotation de la coupole, on doit au préalable soulever la cuirasse de quelques millimètres. Dans ce but, la cuirasse repose par l'intermédiaire de flasques sur une colonne pivot. Un levier à rochet assure le fonctionnement. La rotation de la coupole se fait aussi à la force des bras en introduisant des leviers dans des douilles à la partie inférieure des flasques. La cuirasse et l'avant-cuirasse de ces deux coupoles sont en acier laminé. Leur mécanisme est analogue à celui des coupoles de 12 et de 15 cm. L'obusier a une portée de 6900 mètres.

Coupoles de 5,7 cm

Ces coupoles sont éclipsables. Ici, la cuirasse fait corps avec un manteau cylindrique. Le tout est soutenu par une colonne verticale guidée dans une douille et portée par l'extrémité d'un balancier dont l'autre extrémité porte un contrepoids. Pour soulever la coupole, on appuie sur une tige de manœuvre fixée au balancier. Pour l'éclipser, on opère à l'aide d'une roue verticale sur les rayons de laquelle le canonnier appuie avec les pieds. En position de tir, la coupole est soulevée d'environ 60 cm et le canon doit être porté en avant, en saillie sur le manteau cylindrique. La cuirasse est en acier laminé. L'avant-cuirasse, en fonte durcie, est noyée dans un anneau protecteur en béton simple d'environ 3,50 m d'épaisseur. Les coupoles de 5,7 cm étaient disposées à chaque saillant du fort. Elles avaient pour mission de défendre le glacis du fort et d'assurer la défense rapprochée. Les projectiles pouvaient atteindre 3375 mètres. Les canons de 5,7 cm pouvaient tirer des boîtes à balles contre l'infanterie ennemie. Ces obus contenaient 196 billes et avaient une portée efficace de 300 mètres.

Phare cuirassé

Le phare cuirassé est éclipsable. La cuirasse en acier moulé et le manteau cylindrique forment une seule pièce. Le tout est soutenu par un piston qui coulisse dans un cylindre alimenté par un accumulateur hydraulique à récupérateur différentiel. L'éclipse et l'ascension sont obtenus par la manœuvre d'un distributeur disposé à la partie inférieure du puits juste à côté de la manivelle de rotation du phare. L'avant-cuirasse, en fonte durcie, est aussi noyée dans un anneau protecteur en béton simple qui se confond avec le massif central. La portée du phare peut atteindre 3000 mètres par une nuit sans brume.

Flanquement

Le flanquement des fronts latéraux est assuré par un coffre double de contrescarpe à deux étages de feu et placé à la tête du fort. Seul l'étage inférieur est armé. En cas d'obstruction des embrasures, les pièces sont hissées à l'étage supérieur. Le flanquement du front de gorge se fait par deux coffres conjugués à un seul étage de feu et placés au centre de la gorge. Le flanquement de la rampe d'accès est assuré par un canon, à l'escarpe, prenant la rampe en enfilade. Tous les coffres sont équipés de canons de 5,7 cm à tir rapide sur affûts chandeliers.

Die Fernkampfartillerie umfasst: 1 Kuppel für 2 Kanonen 15 cm, 2 Kuppeln für 2 Kanonen 12 cm, 2 Kuppeln für 1 Haubitze 21 cm. Die Nahkampfartillerie umfasst: 4 Kuppeln für 1 Schnellfeuerkanone 5,7 cm.

12- und 15-cm-Kuppeln

Die 12- und 15-cm-Kuppeln sind nicht versenkbar. Die Panzerung ruht über eine Bleifuge auf einer Lagerkonstruktion aus Blechen und Winkeleisen. Diese Lagerkonstruktion wird von einer Reihe vertikaler Stützen getragen, deren unterer Teil auf einem beweglichen Ring aufliegt. Dieser ruht auf einem Kranz von Kegelrollen, die ihrerseits auf einem feststehenden Ring aufliegen. Die schnelle Drehung erfolgt durch eine Handwinde im unteren Geschoss. Die langsame Bewegung erfolgt über ein Rad im Schussraum, das ein Untersetzungsritzel antreibt. Die Panzerung in Form einer sphärischen Kalotte besteht aus Walzstahl. Der Panzerkragen aus Hartguss ist außen kreisbogenförmig profiliert. Er ist in einen Schutzring aus einfachem Beton eingebettet, der mit dem Zentralmassiv verschmilzt. Die Reichweite der 15-cm-Kanonen betrug 8500 Meter, die der 12-cm-Kanonen 6000 Meter.

21-cm-Kuppeln

Wie die vorhergehenden sind die 21-cm-Kuppeln nicht versenkbar, aber hier ruht die Panzerung direkt auf dem Panzerkragen. Folglich muss, um die Kuppel drehen zu können, die Panzerung zunächst um einige Millimeter angehoben werden. Zu diesem Zweck ruht die Panzerung über Seitenteile auf einer zentralen Säule. Ein Ratschehebel sorgt für die Betätigung. Die Drehung der Kuppel erfolgt ebenfalls mit Muskelkraft, indem Hebel in Buchsen am unteren Teil der Seitenteile eingeführt werden. Panzerung und Panzerkragen dieser beiden Kuppeln bestehen aus Walzstahl. Ihr Mechanismus ist analog zu dem der 12- und 15-cm-Kuppeln. Die Haubitze hat eine Reichweite von 6900 Metern.

5,7-cm-Kuppeln

Diese Kuppeln sind versenkbar. Hier bildet die Panzerung eine Einheit mit einem zylindrischen Mantel. Das Ganze wird von einer vertikalen Säule getragen, die in einer Hülse geführt wird und vom Ende eines Auslegers getragen wird, an dessen anderem Ende ein Gegengewicht angebracht ist. Zum Heben der Kuppel drückt man auf eine am Ausleger befestigte Betätigungsstange. Zum Versenken betätigt man ein vertikales Rad, auf dessen Speichen der Kanonier mit den Füßen drückt. In Feuerstellung ist die Kuppel etwa 60 cm angehoben, und das Kanonenrohr muss nach vorne gebracht werden, sodass es über den zylindrischen Mantel hinausragt. Die Panzerung ist aus Walzstahl. Der Panzerkragen aus Hartguss ist in einen etwa 3,50 m dicken Schutzring aus einfachem Beton eingebettet. Die 5,7-cm-Kuppeln waren an jedem Saillant des Forts angeordnet. Ihre Aufgabe war es, das Glacis des Forts zu verteidigen und die Nahverteidigung sicherzustellen. Die Geschosse konnten 3375 Meter erreichen. Die 5,7-cm-Kanonen konnten Kartätschen gegen feindliche Infanterie verschießen. Diese Granaten enthielten 196 Kugeln und hatten eine effektive Reichweite von 300 Metern.

Panzerscheinwerfer

Der Panzerscheinwerfer ist versenkbar. Die Panzerung aus Stahlguss und der zylindrische Mantel bilden ein Stück. Das Ganze wird von einem Kolben getragen, der in einem Zylinder gleitet, der von einem hydraulischen Speicher mit Differentialrückholung gespeist wird. Versenkung und Hebung erfolgen durch Betätigung eines Verteilers am unteren Ende des Schachts direkt neben der Drehkurbel des Scheinwerfers. Der Panzerkragen aus Hartguss ist ebenfalls in einen Schutzring aus einfachem Beton eingebettet, der mit dem Zentralmassiv verschmilzt. Die Reichweite des Scheinwerfers kann in einer nebel- und dunstfreien Nacht 3000 Meter erreichen.

Flankierung

Die Flankierung der Seitenfronten erfolgt durch eine doppelte Kontreskarpenkasematte mit zwei Feuerebenen am Kopf des Forts. Nur die untere Ebene ist bewaffnet. Im Falle einer Behinderung der Schießscharten werden die Geschütze in die obere Ebene gehoben. Die Flankierung der Kehlfront erfolgt durch zwei zusammenhängende Kasematten mit einer Feuerebene in der Mitte der Kehle. Die Flankierung der Zugangsrampe erfolgt durch ein Kanon in der Eskarpe, das die Rampe in enfilade bestreicht. Alle Kasematten sind mit 5,7-cm-Schnellfeuerkanonen auf Säulenlafetten ausgerüstet.

De artillerie voor verre werking omvat: 1 koepel voor 2 kanonnen 15 cm, 2 koepels voor 2 kanonnen 12 cm, 2 koepels voor 1 houwitser 21 cm. De artillerie voor nabije werking omvat: 4 koepels voor 1 snelvuurkanon 5,7 cm.

12 en 15 cm koepels

De 12 en 15 cm koepels zijn niet verschietbaar. De pantser rust via een loden voeg op een draagconstructie van platen en hoekijzers. Deze draagconstructie wordt ondersteund door een reeks verticale stijlen waarvan het onderste deel rust op een beweegbare ring. Deze rust op een ring van kegelrollen die zelf steunt op een vaste ring. De snelle rotatie wordt verzekerd door een handlier in het benedenverdieping. De langzame beweging gebeurt door een wiel in de vuurkamer dat een reductierondsel aandrijft. Het pantser, in de vorm van een sferische kalot, is van gewalst staal. De voorpantser, van gehard gietijzer, is aan de buitenzijde cirkelboogvormig geprofileerd. Het is ingebed in een beschermring van gewoon beton die samenvloeit met de centrale massief. Het bereik van de 15 cm kanonnen was 8500 meter, dat van de 12 cm kanonnen 6000 meter.

21 cm koepels

Zoals de voorgaande zijn de 21 cm koepels niet verschietbaar, maar hier rust het pantser direct op de voorpantser. Bijgevolg moet, om de koepel te kunnen draaien, het pantser eerst enkele millimeters worden opgelicht. Daartoe rust het pantser via flenzen op een draaikolom. Een pal-hendel zorgt voor de bediening. De rotatie van de koepel gebeurt ook met spierkracht door hendels in busen aan het onderste deel van de flenzen te steken. Het pantser en de voorpantser van deze beide koepels zijn van gewalst staal. Hun mechanisme is analoog aan dat van de 12 en 15 cm koepels. De houwitser heeft een bereik van 6900 meter.

5,7 cm koepels

Deze koepels zijn verschietbaar. Hier vormen het pantser en een cilindrische mantel één geheel. Het geheel wordt gedragen door een verticale kolom geleid in een bus en ondersteund door het uiteinde van een balans waarvan het andere uiteinde een contragewicht draagt. Om de koepel te heffen, drukt men op een aan de balans bevestigde bedieningsstang. Om te verschieten, bedient men een verticaal wiel op de spaken waarvan de kanonnier met de voeten duwt. In vuurpositie is de koepel ongeveer 60 cm geheven en moet de loop naar voren worden gebracht, uitstekend boven de cilindrische mantel. Het pantser is van gewalst staal. De voorpantser, van gehard gietijzer, is ingebed in een beschermring van gewoon beton van ongeveer 3,50 m dik. De 5,7 cm koepels waren aangebracht aan elke saillant van het fort. Hun taak was het glacis van het fort te verdedigen en de nabijverdediging te verzekeren. De projectielen konden 3375 meter bereiken. De 5,7 cm kanonnen konden kartetsen tegen de vijandelijke infanterie schieten. Deze granaten bevatten 196 kogels en hadden een effectief bereik van 300 meter.

Gepantserde zoeklicht

De gepantserde zoeklicht is verschietbaar. Het pantser van gegoten staal en de cilindrische mantel vormen één stuk. Het geheel wordt gedragen door een zuiger die glijdt in een cilinder gevoed door een hydraulische accumulator met differentiële terugwinning. De verschieting en verheffing worden verkregen door de bediening van een verdeelstuk aan het onderste deel van de put net naast de draaikruk van de zoeklicht. De voorpantser, van gehard gietijzer, is ook ingebed in een beschermring van gewoon beton die samenvloeit met de centrale massief. Het bereik van de zoeklicht kan 3000 meter bedragen op een nevelvrije nacht.

Flankering

De flankering van de laterale fronten wordt verzekerd door een dubbele contrescarpe-kazemat met twee vuurverdiepingen aan de kop van het fort. Alleen de onderste verdieping is bewapend. In geval van obstructie van de schietgaten worden de stukken naar de bovenste verdieping gehesen. De flankering van het keelfront gebeurt door twee samenhangende kazematten met één vuurverdieping in het midden van de keel. De flankering van de toegangshelling wordt verzekerd door een kanon, aan de escarpe, dat de helling in enfilade neemt. Alle kazematten zijn uitgerust met 5,7 cm snelvuurkanonnen op zuillaffetten.

The long-range artillery comprises: 1 cupola for 2 15 cm guns, 2 cupolas for 2 12 cm guns, 2 cupolas for 1 21 cm howitzer. The short-range artillery comprises: 4 cupolas for 1 5.7 cm rapid-fire gun.

12 and 15 cm cupolas

The 12 and 15 cm cupolas are not disappearing. The armor rests via a lead joint on a sill plate made of sheets and angle irons. This sill plate is supported by a series of vertical uprights whose lower part rests on a movable ring. This rests on a ring of frustoconical rollers which itself rests on a fixed ring. Rapid rotation is ensured by a hand winch located on the lower level. Slow movement is done by a wheel placed in the firing chamber which drives a reduction pinion. The armor, in the shape of a spherical cap, is made of rolled steel. The neck armor, made of hardened cast iron, is externally profiled in an arc of a circle. It is embedded in a protective ring of simple concrete which merges with the central massif. The range of the 15 cm guns was 8500 meters, that of the 12 cm guns was 6000 meters.

21 cm cupolas

Like the previous ones, the 21 cm cupolas are not disappearing, but here the armor rests directly on the neck armor. Consequently, to be able to rotate the cupola, the armor must first be raised a few millimeters. For this purpose, the armor rests via side plates on a pivot column. A ratchet lever ensures operation. The rotation of the cupola is also done by muscle power by inserting levers into sockets at the lower part of the side plates. The armor and neck armor of these two cupolas are made of rolled steel. Their mechanism is analogous to that of the 12 and 15 cm cupolas. The howitzer has a range of 6900 meters.

5.7 cm cupolas

These cupolas are disappearing. Here, the armor is integral with a cylindrical mantle. The whole is supported by a vertical column guided in a sleeve and carried by the end of a rocker arm whose other end carries a counterweight. To raise the cupola, one presses on an operating rod attached to the rocker arm. To disappear it, one operates using a vertical wheel on the spokes of which the gunner presses with his feet. In firing position, the cupola is raised about 60 cm and the gun must be brought forward, projecting beyond the cylindrical mantle. The armor is rolled steel. The neck armor, made of hardened cast iron, is embedded in a protective ring of simple concrete about 3.50 m thick. The 5.7 cm cupolas were placed at each salient of the fort. Their mission was to defend the fort's glacis and ensure close defense. The projectiles could reach 3375 meters. The 5.7 cm guns could fire canister shot against enemy infantry. These shells contained 196 balls and had an effective range of 300 meters.

Armored searchlight

The armored searchlight is disappearing. The cast steel armor and the cylindrical mantle form a single piece. The whole is supported by a piston which slides in a cylinder fed by a hydraulic accumulator with differential recuperator. Disappearing and rising are obtained by operating a distributor located at the lower part of the shaft just next to the searchlight rotation crank. The neck armor, made of hardened cast iron, is also embedded in a protective ring of simple concrete which merges with the central massif. The range of the searchlight can reach 3000 meters on a fogless night.

Flanking

Flanking of the lateral fronts is ensured by a double counterscarp casemate with two firing levels placed at the head of the fort. Only the lower level is armed. In case of obstruction of the embrasures, the guns are hoisted to the upper level. Flanking of the gorge front is done by two conjugate casemates with a single firing level placed in the center of the gorge. Flanking of the access ramp is ensured by a gun, on the escarp, taking the ramp in enfilade. All casemates are equipped with 5.7 cm rapid-fire guns on pedestal mounts.

Dělostřelectvo pro dálkovou palbu zahrnuje: 1 kopuli pro 2 kanóny 15 cm, 2 kopule pro 2 kanóny 12 cm, 2 kopule pro 1 houfnici 21 cm. Dělostřelectvo pro blízkou palbu zahrnuje: 4 kopule pro 1 rychlopalný kanón 5,7 cm.

Kopule 12 a 15 cm

Kopule 12 a 15 cm nejsou výsuvné. Pancíř spočívá prostřednictvím olověného spoje na nosné konstrukci z plechů a úhelníků. Tato nosná konstrukce je podepřena řadou svislých sloupků, jejichž spodní část se opírá o pohyblivý věnec. Ten spočívá na věnci komolých kuželových kladek, který se sám opírá o pevný věnec. Rychlé otáčení zajišťuje ruční naviják umístěný ve spodním patře. Pomalý pohyb se provádí kolem v palebné místnosti, které pohání redukční pastorek. Pancíř ve tvaru kulového vrchlíku je z válcované oceli. Přední pancíř (pancéřový límec) z tvrzené litiny je z vnější strany profilován do kruhového oblouku. Je zabetonován do ochranného prstence z prostého betonu, který splývá s centrálním masivem. Dostřel kanónů ráže 15 cm byl 8500 metrů, kanónů ráže 12 cm 6000 metrů.

Kopule 21 cm

Stejně jako předchozí nejsou 21cm kopule výsuvné, ale zde pancíř spočívá přímo na předním pancíři. V důsledku toho, aby bylo možné kopulí otáčet, musí se pancíř nejprve nadzvednout o několik milimetrů. Za tímto účelem spočívá pancíř prostřednictvím bočnic na otočném sloupu. Obsluhu zajišťuje páka s rohatkou. Otáčení kopule se rovněž provádí svalovou silou zasouváním pák do pouzder ve spodní části bočnic. Pancíř a přední pancíř těchto dvou kopulí jsou z válcované oceli. Jejich mechanismus je analogický mechanismu 12 a 15cm kopulí. Houfnice má dostřel 6900 metrů.

Kopule 5,7 cm

Tyto kopule jsou výsuvné. Zde je pancíř spojen s válcovým pláštěm v jeden celek. Celek je nesen svislým sloupem vedeným v pouzdře a neseným koncem vahadla, na jehož druhém konci je protizávaží. Ke zvednutí kopule se tlačí na ovládací tyč připevněnou k vahadlu. K zasunutí se obsluhuje pomocí svislého kola, na jehož paprsky kanonýr tlačí nohama. V palebné poloze je kopule zvednuta asi o 60 cm a hlaveň musí být vysunuta dopředu, vyčnívající nad válcový plášť. Pancíř je z válcované oceli. Přední pancíř z tvrzené litiny je zabetonován do ochranného prstence z prostého betonu o tloušťce asi 3,50 m. Kopule ráže 5,7 cm byly umístěny u každého salientu pevnosti. Jejich úkolem bylo bránit glacis pevnosti a zajišťovat blízkou obranu. Střely mohly dosáhnout 3375 metrů. Kanóny ráže 5,7 cm mohly střílet kartáčové střely proti nepřátelské pěchotě. Tyto granáty obsahovaly 196 kuliček a měly účinný dostřel 300 metrů.

Pancéřový světlomet

Pancéřový světlomet je výsuvný. Pancíř z lité oceli a válcový plášť tvoří jeden kus. Celek je nesen pístem, který se pohybuje ve válci napájeném hydraulickým akumulátorem s diferenciálním vratným zařízením. Zasunutí a zdvižení se dosahuje obsluhou rozdělovače umístěného ve spodní části šachty hned vedle kliky pro otáčení světlometu. Přední pancíř z tvrzené litiny je rovněž zabetonován do ochranného prstence z prostého betonu, který splývá s centrálním masivem. Dosvit světlometu může za bezmlžné noci dosáhnout 3000 metrů.

Flankování

Flankování bočních front je zajištěno dvojitou kontreskarpovou kasematou se dvěma palebnými úrovněmi umístěnou na hlavě pevnosti. Je vyzbrojena pouze spodní úroveň. V případě ucpání střílen jsou zbraně vytaženy do horní úrovně. Flankování krčního frontu provádějí dvě sdružené kasematy s jednou palebnou úrovní umístěné uprostřed krku. Flankování přístupové rampy zajišťuje kanón na eskarpě, který rampu ostřeluje podélně. Všechny kasematy jsou vybaveny 5,7cm rychlopalnými kanóny na sloupových lafetách.