Ben Gardane (place de)[i69][33.274578, 11.125291] 🌎

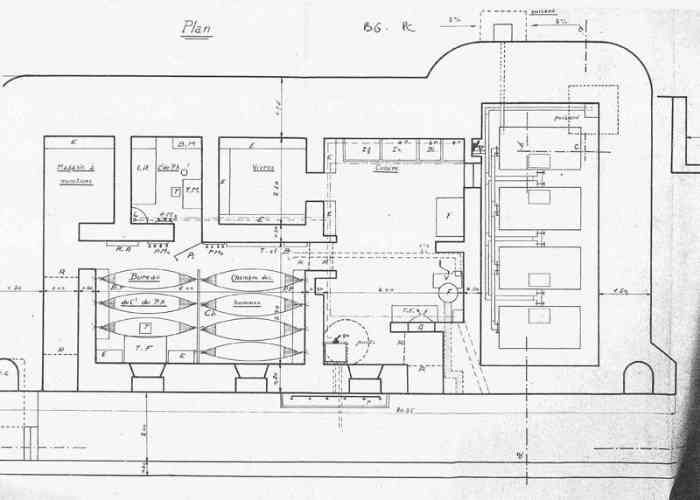
Mareth. À l’origine des travaux de la ligne Mareth, il était prévu que la place de Ben Gardane, comme celles de Tataouine et de Médenine, reçoive une mission uniquement défensive. Mais elle devint rapidement, dans l’esprit du commandement, la base de départ idéale d’opérations vers la Tripolitaine, dont la frontière n’est qu’à une trentaine de kilomètres. Des forces mobiles importantes y furent donc stationnées, dès 1939. En juin 1940, le commandement de l’ensemble est placé sous la responsabilité du lieutenant-colonel, commandant le 4e Régiment de Chasseurs d’Afrique (RCA). Conçue par le commandant Rime-Bruneau, la défense fixe de Ben Gardane repose essentiellement sur quatre points d’appui (PA), reliés entre eux par un réseau de barbelés, protégeant un réduit central incluant les éléments de commandement, les casernements et les dépôts. La position se développe sur 10 kilomètres, du nord au sud, et sur 3,5 kilomètres, d’est en ouest. Les points d’appui, adaptés au terrain uniformément plat, portent les noms des lieux-dits situés à proximité. On trouve ainsi, du nord au sud :


Les points d’appui sont tous identiques, à quelques détails près. Ils ont été réalisés par la main d’œuvre militaire (MOM), et se présentent, en plan, sous la forme d’un T, dont la barre, d’une longueur variant de 250 à 300 mètres, forme le front du dispositif. Un réseau bas de barbelés, doublé d’un champ de rails, relie les trois extrémités du T, ce qui donne au point d’appui une forme triangulaire caractéristique. Le front comprend, d’une extrémité à l’autre :


Légèrement en arrière du front, on trouve un, ou deux, emplacements bétonnés pour chacun deux mortiers de 81 mm. Sur une ligne perpendiculaire au front, d’une longueur variant entre 150 et 200 mètres, on trouve, d’avant en arrière :


L’épaisseur du mur de front de ces éléments, réalisés en béton armé, a une épaisseur de 1,75 mètre. L’épaisseur de la dalle, qui affleure le sol, est de 1,50 mètre. Tous les éléments sont reliés par une tranchée bétonnée. Rien ne dépasse du sol, hormis le réseau, les canons antichars, et les blockhaus pour FM. Les canons antichars sont du modèle 47 M, couramment utilisés sur la ligne Mareth. Dans le PA de la Marsa, uniquement, une cuve pour canon de 75 Mle 1897 sur affût Marine Mle 1916 (75 M) est placée en avant du poste de commandement de l’ouvrage. L’élément le plus intéressant de ces points d’appui est, sans aucun doute, la casemate pour GM. Mesurant 10,5 mètres sur 2,5 mètres, elle comporte des hamacs pour le personnel, et un système de ventilation à bras. L’armement, composé de deux mitrailleuses Hotchkiss de 8 mm, est disposé dans deux puits, accessibles depuis l’ouvrage par de petites échelles, et dont l’ouverture affleure la dalle de couverture. Le support de l’affût est fixé au mur du puits, et l’arme, en position de tir, se trouve pratiquement au niveau du terrain. L’ouverture du puits est, au repos, protégée par une tôle pivotante, en forme de « chapeau chinois », qu’il suffit de faire basculer sur le côté pour l’effacer. On est loin des blockhaus ou casemates MOM, de métropole ou de la ligne Mareth, dont les embrasures, très visibles, sont autant de points à viser pour l’ennemi. On est tout près du dispositif appelé « tobrouk », qui apparaîtra un peu plus tard en Libye (1). Les ouvrages de Ben Gardane, imaginés par le commandant Rime-Bruneau, et réalisés de façon économique, le sont aussi sur le plan des effectifs, puisque l’effectif de chaque point d’appui n’est que de soixante hommes, fournis par le 12e Bataillon d’Infanterie Légère (BIL). Outre celui-ci, la garnison comprend les 7e et 8e goums mixtes, ainsi que deux sections de 75 Mle 1897 sur affût de campagne (75 C), de la 4e batterie du 388e Régiment d’Artillerie de Position de Tunisie (RAPT), qui assure l’appui d’artillerie. Ce sont également des artilleurs de cette batterie qui arment le canon de 75 M du PA de la Marsa. Le réduit proprement dit comprend une enceinte, défendue par quelques blockhaus. Des éléments mobiles sont chargés d’assurer la protection en avant de la position, de mener des contre-attaques ou des actions offensives. En juin 1940, l’armée italienne ne se frottera pas à la position. En 1942, la 7e division blindée britannique se heurte aux forces de l’Axe défendant Ben Gardane, qui livrent quelques combats retardateurs en avant de la position fortifiée, puis l’abandonne sans la défendre.
Zu Beginn der Arbeiten an der Mareth-Linie war vorgesehen, dass der Platz von Ben Gardane, wie die von Tataouine und Médenine, nur eine defensive Aufgabe erhalten sollte. Aber er wurde schnell in den Augen der Führung zur idealen Ausgangsbasis für Operationen in Richtung Tripolitanien, dessen Grenze nur etwa dreißig Kilometer entfernt ist. Bedeutende mobile Kräfte wurden daher bereits 1939 dort stationiert. Im Juni 1940 wird das Gesamtkommando dem Oberstleutnant, Kommandeur des 4. Regiments der Afrikajäger (RCA), übertragen. Entworfen von Kommandant Rime-Bruneau, basiert die feste Verteidigung von Ben Gardane im Wesentlichen auf vier Stützpunkten (SP), die untereinander durch ein Stacheldrahtnetz verbunden sind und ein zentrales Reduit schützen, das die Führungselemente, Unterkünfte und Depots umfasst. Die Stellung erstreckt sich über 10 Kilometer von Nord nach Süd und 3,5 Kilometer von Ost nach West. Die Stützpunkte, dem gleichmäßig flachen Gelände angepasst, tragen die Namen der nahe gelegenen Ortschaften. Man findet so von Nord nach Süd:


Die Stützpunkte sind alle identisch, bis auf einige Details. Sie wurden durch militärische Arbeitskräfte (MOM) errichtet und stellen sich im Grundriss als T dar, dessen Querbalken, mit einer Länge von 250 bis 300 Metern, die Front des Systems bildet. Ein niedriges Stacheldrahtnetz, ergänzt durch ein Schienenfeld, verbindet die drei Enden des T, was dem Stützpunkt eine charakteristische dreieckige Form verleiht. Die Front umfasst von einem Ende zum anderen:


Etwas hinter der Front befinden sich ein oder zwei betonierte Stellungen für jeweils zwei 81-mm-Mörser. Auf einer Linie senkrecht zur Front, mit einer Länge zwischen 150 und 200 Metern, findet man von vorne nach hinten:


Die Dicke der Frontmauer dieser aus Stahlbeton gefertigten Elemente beträgt 1,75 Meter. Die Dicke der Deckenplatte, die mit dem Gelände abschließt, beträgt 1,50 Meter. Alle Elemente sind durch einen betonierten Graben verbunden. Nichts ragt aus dem Boden, außer dem Netz, den Panzerabwehrkanonen und den Bunkern für LMG. Die Panzerabwehrkanonen sind vom Modell 47 M, das häufig an der Mareth-Linie verwendet wurde. Nur im Stützpunkt La Marsa ist eine Grube für eine 75-mm-Kanone Mle 1897 auf Marine-Lafette Mle 1916 (75 M) vor dem Gefechtsstand des Werks platziert. Das interessanteste Element dieser Stützpunkte ist zweifellos die MG-Gruppen-Kasematte. Sie misst 10,5 mal 2,5 Meter, enthält Hängematten für das Personal und ein Handventilationssystem. Die Bewaffnung, bestehend aus zwei 8-mm-Hotchkiss-Maschinengewehren, ist in zwei Schächten angeordnet, die vom Werk aus über kleine Leitern zugänglich sind und deren Öffnung mit der Abdeckplatte abschließt. Die Halterung der Lafette ist an der Schachtwand befestigt, und die Waffe befindet sich in Feuerstellung praktisch auf Geländeniveau. Die Schachtöffnung ist in Ruhestellung durch ein schwenkbares Blech in Form eines "Chinesenhutes" geschützt, das man einfach zur Seite klappen kann, um es zu beseitigen. Man ist weit entfernt von den Bunkern oder Kasematten der MOM des Mutterlandes oder der Mareth-Linie, deren sehr sichtbare Scharten so viele Zielpunkte für den Feind sind. Man ist ganz nah an der Vorrichtung namens "Tobruk", die etwas später in Libyen auftauchen wird (1). Die Werke von Ben Gardane, von Kommandant Rime-Bruneau ersonnen und wirtschaftlich ausgeführt, sind dies auch personell, denn die Stärke jedes Stützpunkts beträgt nur sechzig Mann, gestellt vom 12. Leichten Infanteriebataillon (BIL). Neben diesem umfasst die Garnison die 7. und 8. gemischte Einheit (Goums) sowie zwei Sektionen 75-mm-Kanonen Mle 1897 auf Feldlafette (75 C) der 4. Batterie des 388. Tunesischen Positionsartillerie-Regiments (RAPT), die die Artillerieunterstützung sicherstellt. Es sind auch Artilleristen dieser Batterie, die die 75-mm-Kanone M des Stützpunkts La Marsa bedienen. Das Reduit selbst umfasst eine Umwallung, die von einigen Bunkern verteidigt wird. Mobile Elemente sind damit beauftragt, den Schutz vor der Stellung zu gewährleisten, Gegenangriffe oder offensive Aktionen durchzuführen. Im Juni 1940 wird die italienische Armee sich nicht an der Stellung reiben. 1942 stößt die 7. britische Panzerdivision auf die Achsenmächte, die Ben Gardane verteidigen, die einige hinhaltende Kämpfe vor der befestigten Stellung liefern und sie dann aufgeben, ohne sie zu verteidigen.
Bij de aanvang van de werken aan de Marethlinie was het de bedoeling dat de plaats Ben Gardane, net als die van Tataouine en Médenine, uitsluitend een defensieve taak zou krijgen. Maar zij werd snel, in de gedachte van de legerleiding, de ideale uitgangsbasis voor operaties richting Tripolitanië, waarvan de grens slechts ongeveer dertig kilometer verwijderd is. Belangrijke mobiele strijdkrachten werden er dan ook al vanaf 1939 gestationeerd. In juni 1940 wordt het commando over het geheel geplaatst onder de verantwoordelijkheid van de luitenant-kolonel, commandant van het 4e Regiment Afrikaanse Jagers (RCA). Ontworpen door commandant Rime-Bruneau, berust de vaste verdediging van Ben Gardane hoofdzakelijk op vier steunpunten (SP), onderling verbonden door een prikkeldraadnetwerk, die een centraal reduit beschermen met de commandoelementen, legeringen en depots. De stelling strekt zich uit over 10 kilometer, van noord naar zuid, en over 3,5 kilometer, van oost naar west. De steunpunten, aangepast aan het vlakke terrein, dragen de namen van de nabijgelegen gehuchten. Men vindt aldus, van noord naar zuid:


De steunpunten zijn alle identiek, op enkele details na. Ze zijn gebouwd door militaire arbeidskrachten (MOM), en vertonen in plattegrond de vorm van een T, waarvan de dwarsbalk, met een lengte variërend van 250 tot 300 meter, het front van het systeem vormt. Een laag prikkeldraadnet, verdubbeld met een veld van rails, verbindt de drie uiteinden van de T, wat het steunpunt een karakteristieke driehoekige vorm geeft. Het front omvat van het ene uiteinde naar het andere:


Iets achter het front vindt men één of twee betonnen opstellingen voor elk twee 81 mm-mortieren. Op een lijn loodrecht op het front, met een lengte variërend tussen 150 en 200 meter, vindt men van voren naar achteren:


De dikte van de frontmuur van deze elementen, uitgevoerd in gewapend beton, is 1,75 meter. De dikte van de dekplaat, die gelijk met de grond ligt, is 1,50 meter. Alle elementen zijn verbonden door een betonnen loopgraaf. Niets steekt boven de grond uit, behalve het netwerk, de antitankkanonnen en de bunkers voor LK. De antitankkanonnen zijn van het model 47 M, veelgebruikt aan de Marethlinie. Alleen in het SP La Marsa is een kazemat voor 75 mm-kanon Mle 1897 op marineaffuit Mle 1916 (75 M) geplaatst voor de commandopost van het werk. Het interessantste element van deze steunpunten is ongetwijfeld de GM-kazemat. Ze meet 10,5 bij 2,5 meter, bevat hangmatten voor het personeel en een handventilatiesysteem. De bewapening, bestaande uit twee 8 mm-Hotchkiss-mitrailleurs, is opgesteld in twee schachten, toegankelijk vanuit het werk via kleine ladders, en waarvan de opening gelijk ligt met de dekplaat. De steun van de affuit is bevestigd aan de schachtwand, en het wapen bevindt zich in vuurpositie vrijwel op maaiveldniveau. De schachtopening wordt in rust beschermd door een zwenkbaar plaatstaal in de vorm van een "chinese hoed", dat men eenvoudig opzij kan kantelen om het te verwijderen. Men is ver verwijderd van de bunkers of kazematten van de MOM van het moederland of van de Marethlinie, waarvan de zeer zichtbare schietgaten evenzovele mikpunten voor de vijand zijn. Men is dicht bij het systeem genaamd "tobroek", dat wat later in Libië zal verschijnen (1). De werken van Ben Gardane, bedacht door commandant Rime-Bruneau en op economische wijze gerealiseerd, zijn dat ook op personeelsgebied, want de sterkte van elk steunpunt is slechts zestig man, geleverd door het 12e Bataljon Lichte Infanterie (BIL). Naast deze omvat het garnizoen de 7e en 8e gemengde goums, alsmede twee secties 75 mm-kanonnen Mle 1897 op veldaffuit (75 C) van de 4e batterij van het 388e Regiment Tunesische Positieartillerie (RAPT), dat de artillerieondersteuning verzorgt. Het zijn ook artilleristen van deze batterij die het 75 mm-kanon M van het SP La Marsa bedienen. Het reduit zelf omvat een omwalling, verdedigd door enkele bunkers. Mobiele elementen zijn belast met het verzekeren van de bescherming voor de stelling, het uitvoeren van tegenaanvallen of offensieve acties. In juni 1940 zal het Italiaanse leger zich niet aan de stelling wagen. In 1942 stoot de 7e Britse Pantserdivisie op de Asmogendheden die Ben Gardane verdedigen, die enkele vertragingsgevechten leveren voor de versterkte stelling, en haar dan prijsgeven zonder haar te verdedigen.
At the origin of the work on the Mareth Line, it was planned that the place of Ben Gardane, like those of Tataouine and Médenine, should have a purely defensive mission. But it quickly became, in the minds of the command, the ideal starting base for operations towards Tripolitania, whose border is only about thirty kilometres away. Significant mobile forces were therefore stationed there from 1939. In June 1940, the command of the whole is placed under the responsibility of the lieutenant-colonel, commanding the 4th Regiment of African Chasseurs (RCA). Designed by Commandant Rime-Bruneau, the fixed defence of Ben Gardane essentially rests on four strongpoints (SP), connected to each other by a barbed wire network, protecting a central keep including command elements, accommodations and depots. The position extends over 10 kilometres, from north to south, and over 3.5 kilometres, from east to west. The strongpoints, adapted to the uniformly flat terrain, bear the names of the nearby localities. Thus we find, from north to south:


The strongpoints are all identical, except for a few details. They were built by military labour (MOM), and present themselves, in plan, in the shape of a T, the crossbar of which, with a length varying from 250 to 300 metres, forms the front of the system. A low barbed wire network, doubled by a field of rails, connects the three ends of the T, which gives the strongpoint a characteristic triangular shape. The front comprises, from one end to the other:


Slightly behind the front, there are one, or two, concrete emplacements for each of two 81 mm mortars. On a line perpendicular to the front, with a length varying between 150 and 200 metres, one finds, from front to rear:


The thickness of the front wall of these elements, made of reinforced concrete, is 1.75 metres. The thickness of the slab, which is flush with the ground, is 1.50 metres. All the elements are connected by a concrete trench. Nothing protrudes from the ground, except the network, the anti-tank guns, and the LMG blockhouses. The anti-tank guns are of the 47 M model, commonly used on the Mareth Line. Only in the La Marsa strongpoint, a pit for a 75 mm gun Mle 1897 on naval mounting Mle 1916 (75 M) is placed in front of the work's command post. The most interesting element of these strongpoints is, without a doubt, the MG group casemate. Measuring 10.5 metres by 2.5 metres, it contains hammocks for the personnel, and a hand-operated ventilation system. The armament, composed of two 8 mm Hotchkiss machine guns, is arranged in two shafts, accessible from the work via small ladders, and whose opening is flush with the cover slab. The mounting support is fixed to the shaft wall, and the weapon, in firing position, is practically at ground level. The shaft opening is, at rest, protected by a pivoting sheet metal, shaped like a "Chinese hat", which can simply be tilted to the side to clear it. We are far from the MOM blockhouses or casemates, of metropolitan France or the Mareth Line, whose very visible embrasures are so many aiming points for the enemy. We are very close to the device called "tobruk", which will appear a little later in Libya (1). The works of Ben Gardane, imagined by Commandant Rime-Bruneau, and economically built, are also so in terms of personnel, since the strength of each strongpoint is only sixty men, provided by the 12th Light Infantry Battalion (BIL). Besides this, the garrison comprises the 7th and 8th mixed goums, as well as two sections of 75 mm guns Mle 1897 on field mounting (75 C), from the 4th battery of the 388th Tunisian Position Artillery Regiment (RAPT), which provides artillery support. It is also artillerymen from this battery who man the 75 M gun of the La Marsa strongpoint. The keep proper comprises an enceinte, defended by a few blockhouses. Mobile elements are responsible for ensuring protection in front of the position, carrying out counter-attacks or offensive actions. In June 1940, the Italian army will not challenge the position. In 1942, the 7th British Armoured Division clashes with the Axis forces defending Ben Gardane, which fight some delaying actions in front of the fortified position, then abandon it without defending it.
Na počátku prací na linii Mareth bylo plánováno, že pevnůstka Ben Gardan, stejně jako ty v Tataouine a Medenínu, dostane pouze obranný úkol. Ale rychle se v mysli velení stala ideální výchozí základnou pro operace směrem k Tripolsku, jehož hranice je jen asi třicet kilometrů daleko. Významné mobilní síly zde proto byly umístěny již od roku 1939. V červnu 1940 je velení celku svěřeno podplukovníkovi, veliteli 4. pluku afrických myslivců (RCA). Navržena velitelem Rime-Bruneauem, spočívá pevná obrana Ben Gardanu v podstatě na čtyřech opěrných bodech (OB), vzájemně propojených sítí ostnatého drátu, chránících centrální reduit zahrnující velitelské prvky, ubytování a sklady. Pozice se rozkládá na 10 kilometrů od severu k jihu a na 3,5 kilometru od východu k západu. Opěrné body, přizpůsobené rovnoměrně rovinatému terénu, nesou jména blízkých lokalit. Najdeme je takto od severu k jihu:


Opěrné body jsou všechny identické, až na několik detailů. Byly postaveny vojenskými pracovními silami (MOM) a v půdorysu mají tvar T, jehož příčka o délce 250 až 300 metrů tvoří čelo systému. Nízká síť ostnatého drátu, zdvojená polem kolejnic, spojuje tři konce T, což dává opěrnému bodu charakteristický trojúhelníkový tvar. Čelo zahrnuje od jednoho konce ke druhému:


Mírně za čelem se nachází jedno nebo dvě betonová stanoviště pro každý ze dvou 81mm minometů. Na linii kolmé k čelu, s délkou mezi 150 a 200 metry, se nachází od vpředu dozadu:


Tloušťka čelní zdi těchto prvků, provedených ze železobetonu, je 1,75 metru. Tloušťka desky, která je v úrovni terénu, je 1,50 metru. Všechny prvky jsou spojeny betonovaným zákopem. Nic nevyčnívá nad zem, kromě sítě, protitankových kanónů a bunkrů pro LK. Protitankové kanóny jsou modelu 47 M, běžně používaného na linii Mareth. Pouze v OB La Marsa je jáma pro 75mm kanón vz. 1897 na námořní lafetě vz. 1916 (75 M) umístěna před velitelským stanovištěm díla. Nejzajímavějším prvkem těchto opěrných bodů je bezesporu kasemata pro skupinu kulometů. Měří 10,5 krát 2,5 metru, obsahuje hamaky pro personál a ruční ventilační systém. Výzbroj, sestávající ze dvou 8mm kulometů Hotchkiss, je umístěna ve dvou šachtách, přístupných z díla po malých žebřících a jejichž ústí je v úrovni krycí desky. Držák lafety je připevněn ke stěně šachty a zbraň v palebném postavení je prakticky na úrovni terénu. Ústí šachty je v klidu chráněno otočným plechem ve tvaru "čínského klobouku", který lze jednoduše překlopit na stranu, aby se uvolnil. Jsme daleko od bunkrů nebo kasemat MOM v metropoli nebo na linii Mareth, jejichž velmi viditelné střílny jsou tolikerými cíli pro nepřítele. Jsme velmi blízko zařízení zvanému "tobruk", které se objeví o něco později v Libyi (1). Díla v Ben Gardanu, vymyšlená velitelem Rime-Bruneauem a hospodárně provedená, jsou taková i co do počtu personálu, protože stav každého opěrného bodu je pouze šedesát mužů, poskytnutých 12. praporem lehké pěchoty (BIL). Kromě něj posádka zahrnuje 7. a 8. smíšený goum, jakož i dvě sekce 75mm kanónů vz. 1897 na polní lafetě (75 C) ze 4. baterie 388. tuniského pluku postaveného dělostřelectva (RAPT), který zajišťuje dělostřeleckou podporu. Jsou to také dělostřelci z této baterie, kteří obsluhují 75mm kanón M v OB La Marsa. Vlastní reduit zahrnuje ohrazení bráněné několika bunkry. Mobilní prvky jsou pověřeny zajištěním ochrany před pozicí, vedením protiútoků nebo útočných akcí. V červnu 1940 se italská armáda o pozici neotře. V roce 1942 se 7. britská obrněná divize střetává se silami Osy bránícími Ben Gardan, které svedou několik zdržovacích bojů před opevněnou pozicí a pak ji bez boje opustí.
© JJM 05/03/2026

1) Les Italiens se sont certainement inspirés des ouvrages de Ben Gardane pour réaliser la fortification de Tobrouk. En effet, la ligne fortifiée réalisée en Libye avant-guerre, face à Ben Gardane, ne comprenait que des blockhaus en béton non armé, du type que l’on peut encore voir sur la frontière des Alpes, et sur la côte, entre Toulon et Nice.

1) Die Italiener haben sich sicherlich von den Werken von Ben Gardane für die Errichtung der Befestigung von Tobruk inspirieren lassen. Tatsächlich umfasste die vor dem Krieg in Libyen errichtete befestigte Linie gegenüber von Ben Gardane nur Bunker aus unbewehrtem Beton, wie man sie noch an der Alpengrenze und an der Küste zwischen Toulon und Nizza sehen kann.

1) De Italianen hebben zich zeker laten inspireren door de werken van Ben Gardane voor de realisatie van de versterking van Tobroek. De voor de oorlog in Libië gerealiseerde versterkte linie tegenover Ben Gardane omvatte immers slechts bunkers van ongewapend beton, van het type dat men nog kan zien aan de Alpengrens en aan de kust tussen Toulon en Nice.

1) The Italians certainly drew inspiration from the works of Ben Gardane to build the fortification of Tobruk. Indeed, the fortified line built in Libya before the war, opposite Ben Gardane, only comprised unreinforced concrete blockhouses, of the type that can still be seen on the Alpine border, and on the coast, between Toulon and Nice.

1) Italové se jistě inspirovali díly v Ben Gardanu při realizaci opevnění Tobruku. Opevněná linie vybudovaná v Libyi před válkou, naproti Ben Gardanu, zahrnovala pouze bunkry z nevyztuženého betonu, typu, který lze ještě vidět na alpské hranici a na pobřeží mezi Toulonem a Nice.