Eben-Emael - Maastricht 1[e8][50.799122, 5.678086]

Fortifications belges de la seconde guerre mondiale, première ligne de défenses de Liège, position fortifiée de Liège, fort d'Eben-Emael, Maastricht 1, LE bloc historique du fort. Si vous examinez d'un peu plus près le plan du fort, vous constaterez qu'il se trouve dans le talus d'escarpe Est de l'ouvrage et que sa façade est dirigée vers l'Est et vers Maastricht. De ce côté, il n'y a pas d'autre fort et seul le bloc Mi-Sud dispose d'une embrasure pouvant protéger cette façade. Or, Mi-Sud est neutralisé immédiatement dès l'atterrissage des planeurs. Les parachutistes allemands ont donc toutes les facilités pour attaquer Maastricht 1. En plaçant une forte charge dans l'une des embrasures, le canon est violemment projeté au fond de sa chambre de tir. Au passage, il bloque la porte du local téléphone à côté du petit monte-charge. Dans ce local téléphone se trouvent deux soldats du fort qui feront le mort jusqu'à la reddition de l'ouvrage et qui pourront suivre d'une oreille attentive le déroulement de toutes les opérations allemandes. Les soldats du bloc se sont réfugiés dans la galerie souterraine, les barrages de poutrelles ont été mis en place et Maastricht 1 est totalement isolé du reste du fort. Par l'embrasure largement ouverte, les soldats allemands lanceront quelques grenades à fragmentation avant d'y pénétrer pour ne trouver personne. Ils descendent alors l'escalier métallique qui descend en tournant autour des monte-charge jusqu'au niveau des galeries souterraines et se heurtent au verrou qui a été installé. Ils décident de faire sauter le barrage, remontent chercher le matériel, redescendent pour l'installer, et se réfugient tout en haut pendant l'explosion. Lorsque la poussière de l'explosion est retombée, ils constatent que tout l'escalier s'est effondré au fond du puits et qu'il n'est plus possible de descendre. Au barrage, les dégâts sont relativement minimes et s'ils avaient pu redescendre une nouvelle fois, ils n'auraient pu que constater l'impossibilité de pénétrer dans l'ouvrage par cette méthode.

Belgische Befestigungen des Zweiten Weltkriegs, erste Linie der befestigten Stellung Lüttich, befestigte Stellung Lüttich, Fort von Eben-Emael, Maastricht 1, DER historische Block des Forts. Wenn Sie den Plan des Forts genauer untersuchen, werden Sie feststellen, dass er sich im Ost-Eskarpentals des Werks befindet und dass seine Fassade nach Osten und nach Maastricht ausgerichtet ist. Auf dieser Seite gibt es kein anderes Fort und nur der Block Mi-Sud verfügt über eine Scharte, die diese Fassade schützen könnte. Doch Mi-Sud wird sofort bei der Landung der Lastensegler neutralisiert. Die deutschen Fallschirmjäger haben daher alle Möglichkeiten, Maastricht 1 anzugreifen. Durch das Anbringen einer starken Ladung in einer der Scharten wird das Geschütz gewaltsam an den hinteren Teil seiner Schießkammer geschleudert. Dabei blockiert es die Tür des Telefonraums neben dem kleinen Aufzug. In diesem Telefonraum befinden sich zwei Soldaten des Forts, die sich bis zur Übergabe des Werks tot stellen und die Entwicklung aller deutschen Operationen aufmerksam verfolgen können. Die Soldaten des Blocks haben sich in den unterirdischen Gang geflüchtet, die Trägersperren wurden eingerichtet und Maastricht 1 ist völlig vom Rest des Forts isoliert. Durch die weit geöffnete Scharte werfen die deutschen Soldaten einige Splittergranaten, bevor sie eindringen, um niemanden zu finden. Sie steigen dann die Metalltreppe hinab, die sich um die Aufzüge herum bis zum Niveau der unterirdischen Gänge windet, und stoßen auf das angebrachte Schloss. Sie beschließen, die Sperre zu sprengen, steigen hinauf, um das Material zu holen, steigen wieder hinab, um es anzubringen, und flüchten sich ganz oben während der Explosion. Als der Staub der Explosion sich gelegt hat, stellen sie fest, dass die ganze Treppe am Boden des Schachts zusammengestürzt ist und dass ein weiteres Hinabsteigen nicht mehr möglich ist. An der Sperre sind die Schäden relativ gering, und wenn sie noch einmal hätten hinabsteigen können, hätten sie nur feststellen können, dass ein Eindringen in das Werk auf diese Methode unmöglich ist.

Belgische versterkingen van de Tweede Wereldoorlog, eerste linie van de versterkte stelling Luik, versterkte stelling Luik, fort van Eben-Emael, Maastricht 1, DE historische blok van het fort. Als u het plan van het fort wat nauwkeuriger bekijkt, zult u vaststellen dat hij zich in het talud van de oostelijke escarpe van het werk bevindt en dat zijn gevel naar het oosten en naar Maastricht is gericht. Aan deze kant is er geen ander fort en alleen de blok Mi-Sud beschikt over een schietopening die deze gevel zou kunnen beschermen. Maar Mi-Sud wordt onmiddellijk bij de landing van de zweefvliegtuigen geneutraliseerd. De Duitse parachutisten hebben dus alle faciliteiten om Maastricht 1 aan te vallen. Door een zware lading in een van de schietopeningen te plaatsen, wordt het kanon gewelddadig naar de achterkant van zijn schietkamer geslingerd. Hierbij blokkeert het de deur van de telefoonruimte naast de kleine lift. In deze telefoonruimte bevinden zich twee soldaten van het fort die zich dood zullen houden tot de overgave van het werk en die de ontwikkeling van alle Duitse operaties aandachtig kunnen volgen. De soldaten van de blok hebben hun toevlucht gezocht in de ondergrondse galerij, de stalen balkversperringen zijn geplaatst en Maastricht 1 is volledig geïsoleerd van de rest van het fort. Door de wijdopen schietopening zullen de Duitse soldaten enkele fragmentatiegranaten werpen alvorens binnen te dringen om niemand te vinden. Ze dalen dan de metalen trap af die zich rond de liften naar het niveau van de ondergrondse galerijen slingert en stuiten op het slot dat is aangebracht. Ze besluiten de versperring op te blazen, gaan terug om het materiaal te halen, dalen opnieuw af om het te installeren, en schuilen helemaal boven tijdens de explosie. Wanneer het stof van de explosie is gaan liggen, constateren ze dat de hele trap in elkaar is gestort op de bodem van de schacht en dat het niet meer mogelijk is af te dalen. Aan de versperring zijn de schade relatief gering en als ze nog eens hadden kunnen afdalen, zouden ze alleen hebben kunnen vaststellen dat het onmogelijk was het werk via deze methode binnen te dringen.

Belgian fortifications of the Second World War, first line of the fortified position of Liège, fortified position of Liège, fort of Eben-Emael, Maastricht 1, THE historic block of the fort. If you examine the fort's plan more closely, you will notice that it is located in the eastern scarp slope of the work and that its facade is directed towards the east and towards Maastricht. On this side, there is no other fort and only the Mi-Sud block has an embrasure that could protect this facade. However, Mi-Sud is neutralized immediately upon the landing of the gliders. The German paratroopers therefore have every facility to attack Maastricht 1. By placing a heavy charge in one of the embrasures, the gun is violently thrown to the back of its firing chamber. In doing so, it blocks the door of the telephone room next to the small lift. In this telephone room are two soldiers of the fort who will play dead until the surrender of the work and who will be able to closely follow the development of all German operations. The soldiers of the block have taken refuge in the underground gallery, the girder barriers have been set up and Maastricht 1 is completely isolated from the rest of the fort. Through the widely opened embrasure, the German soldiers will throw some fragmentation grenades before entering to find no one. They then descend the metal staircase that winds around the lifts down to the level of the underground galleries and encounter the lock that has been installed. They decide to blow up the barrier, go back up to fetch the material, go back down to install it, and take refuge at the very top during the explosion. When the dust from the explosion has settled, they find that the entire staircase has collapsed at the bottom of the shaft and that it is no longer possible to descend. At the barrier, the damage is relatively minor and if they had been able to go down again, they would only have been able to note the impossibility of entering the work by this method.

Belgické opevnění druhé světové války, první linie opevněné pozice Lutych, opevněná pozice Lutych, fort Eben-Emael, Maastricht 1, HISTORICKÝ blok fortu. Při bližším prozkoumání plánu fortu zjistíte, že se nachází ve svahu východní eskarpy objektu a že jeho průčelí směřuje na východ a k Maastrichtu. Na této straně není žádný jiný fort a pouze blok Mi-Sud disponuje střílnou, která by toto průčelí mohla chránit. Avšak Mi-Sud je neutralizován okamžitě po přistání kluzáků. Němečtí výsadkáři tedy mají veškeré možnosti k útoku na Maastricht 1. Umístěním silné nálože do jedné ze střílen je dělo násilně vrženo do zadní části své střelecké komory. Při tom zablokuje dveře telefonní místnosti vedle malého výtahu. V této telefonní místnosti se nacházejí dva vojáci fortu, kteří se budou hrát mrtvé až do kapitulace objektu a kteří budou moci pozorně sledovat průběh všech německých operací. Vojáci bloku se ukryli v podzemní galerii, překážky z ocelových profilů byly postaveny a Maastricht 1 je zcela izolován od zbytku fortu. Široce otevřenou střílnou němečtí vojáci vhodí několik tříštivých granátů, než vstoupí a nenajdou nikoho. Poté sestupují kovovým schodištěm, které se vine kolem výtahů až na úroveň podzemních galerií, a narazí na instalovanou závoru. Rozhodnou se překážku odstřelit, vyjdou nahoru pro materiál, sestoupí znovu, aby jej nainstalovali, a ukryjí se zcela nahoře během výbuchu. Když prach po výbuchu usedne, zjistí, že celé schodiště se zřítilo na dno šachty a že již není možné sestoupit. Na překážce jsou škody relativně malé a kdyby byli mohli sestoupit znovu, mohli by pouze konstatovat nemožnost proniknout do objektu touto metodou.


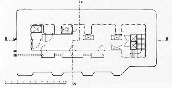
Les plans qui se trouvent dans les illustrations ci-dessous représentent la casemate Visé 2. La disposition est identique pour Maastricht 1 mais le puits se trouve à gauche et les 3 chambres de tir à droite. L'embrasure attaquée est celle qui se trouve à l'extrémité du bloc et on voit sur le plan, la porte du local téléphone qui a été bloquée par le canon.

Die Pläne in den untenstehenden Abbildungen stellen die Kasematte Visé 2 dar. Die Anordnung ist für Maastricht 1 identisch, aber der Schacht befindet sich links und die 3 Schießkammern rechts. Die angegriffene Scharte ist die am Ende des Blocks, und auf dem Plan sieht man die Tür des Telefonraums, die durch das Geschütz blockiert wurde.

De plannen die in de onderstaande illustraties staan, stellen de kazemat Visé 2 voor. De opstelling is identiek voor Maastricht 1 maar de schacht bevindt zich links en de 3 schietkamers rechts. De aangevallen schietopening is die aan het uiteinde van de blok en men ziet op het plan de deur van de telefoonruimte die door het kanon werd geblokkeerd.

The plans found in the illustrations below represent the Visé 2 casemate. The layout is identical for Maastricht 1 but the shaft is on the left and the 3 firing chambers on the right. The embrasure attacked is the one at the end of the block and on the plan, one can see the door of the telephone room that was blocked by the gun.

Plány, které se nacházejí na ilustracích níže, představují kasematní objekt Visé 2. Dispozice je pro Maastricht 1 totožná, ale šachta se nachází vlevo a 3 střelecké komory vpravo. Napadená střílna je ta, která se nachází na konci bloku, a na plánu je vidět dveře telefonní místnosti, které byly zablokovány dělem.

Cité dans : Zitiert in : Geciteerd in: Cited in: Citováno v: Fort d'Eben-Emael